Wyślij pytanie dotyczące produktu
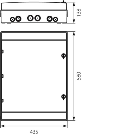
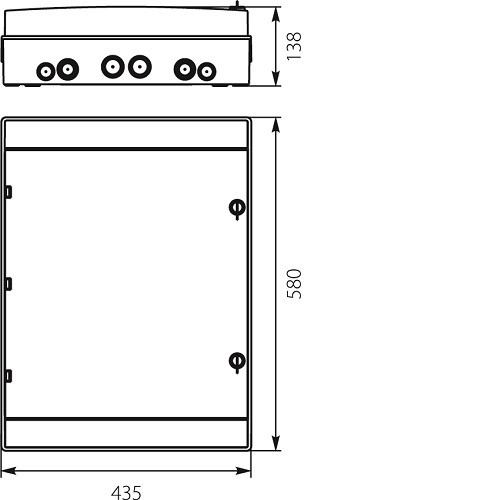
Rozdzelnia 54 moduły natynkowa IP65 (hermetyczna) 3x18 RH-54/3 NEO Elektroplast Opatówek 36.154
Rozdzielnice hermetyczne serii RH "NEO" przeznaczone są do użytku domowego i przemysłowego z możliwością instalacji wyłączników nadmiarowo prądowych oraz aparatów elektrycznych . Występują w wersji natynkowej i znajdują szerokie zastosowanie w instalacjach wykonywanych na zewnątrz budynków.
Charakterystyka techniczna:
rozdzielnice wyposażone w przezroczyste przyciemniane drzwiczki otwierane na bok (na lewo lub na prawo) , przystosowane do zamontowania zamka na klucz,
dostępne w kolorze białym,
wykonane z wysokiej jakości tworzywa >ABS< odpornego na wysoką temperaturę do 960oC (próba rozżarzonym prętem- dotyczy listwy zaciskowej),
stabilność pracy od -25oC do +60oC,
odporność na uderzenia (stopień IK 07),
możliwość zainstalowania aparatów o głębokości 68 i 75mm,
modele 12 modułowe i większe wyposażone w osłabienia w ściankach dla przepustów kablowych i rurek instalacyjnych,
możliwość plombowania drzwiczek,
Rozdzielnice wyposażone:
w listwy zaciskowe dla torów N i PE,
wspornik montażowy TH 35,
etykietę samoprzylepną do opisów.
Strona korzysta z plików cookie w celu realizacji usług zgodnie z Polityką prywatności.
Możesz określić warunki przechowywania lub dostępu do cookie w Twojej przeglądarce.
W tym miejscu możesz wgrać własny plik CSV i masowo dodać produkty do koszyka. Poprawny plik (pobierz plik wzorcowy) powinien składać się z następujących danych:
Plik można edytować za pomocą darmowego programu LibreOffice. Plik musi być kodowany w UTF-8.
Wczytanie pliku spowoduje dodanie produktów do koszyka.